Object ID: BIND45

Расстояне до центра : 2500 м

Город/Район : Аланья / Оба

Расстояние до пляжа: 1600 м

Комнаты :

Дата сдачи объекта :

Балкон : 1

кв.метры : 64m² - 295m²

Кол.этажей : 3

Вид: С видом

Инфраструктура

  • Сад

Преимущества

  • Открытый Автопарк
  • Генератор
  • Cмотритель Комплекса
  • Круглосуточная Охрана
  • Лифт
  • WI-FI в Cоциальной Зоне

О проекте

Наша компания предлагает первый медицинский бизнес-центр в регионе - центр здоровья. Располагается этот замечательный инвестиционный проект Центр здоровья в Алании район Оба.

Оба - популярный район Алании, располагающийся к востоку от центра города, разделен на "Нижний Оба" - территория, прилегающая к морю, здесь много пятиэтажек старой застройки и активность города,  и "Верхний Оба", расположенный среди чистой свежести гор и растущий за счет новостроек с огромной инфраструктурой и красивыми видами. Перенос административного центра способствует развитой инфраструктуре района. Имеются торговые центры, школы, колледжи, университет, детские сады, спортивные поля, красивая обустроенная набережная.  Район популярен для проживания среди турок, европейцев и русскоговорящих. Располагается близко к центру Аланьи, имеет хорошее транспортное сообщение, в зимний период суета тише, но район продолжает активно жить.

ЛОКАЦИЯ И ОСОБЕННОСТИ:

Бизнес-центр расположен недалеко от двух перекрестков, соединяющих восточный и западный районы Аланьи, на новой кольцевой дороге, благодаря чему это удобное месторасположение как для работников так и для клиентов, чтобы иметь легкий и быстрый доступ к центру.

• Центр города в 10 минутах езды
• Море 1,6 км
• Международный аэропорт Алании/Газипаша в 35 км.
• Международного аэропорт Анталии 125 км.

Проект является одним из первых частных медицинских центров в Алании и будет предназначен для предоставления качественных медицинских услуг в городе. Цель данного проекта - привлечь инвесторов не только Турции, но и иностранных граждан. Проект был разработан с учетом потребностей врачей, юридических требований, а также потребностей жителей домов, которые расположены рядом. Медицинский центр будет полностью работать на рынке здравоохранения в соответствии с законодательством.
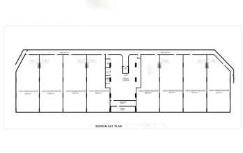
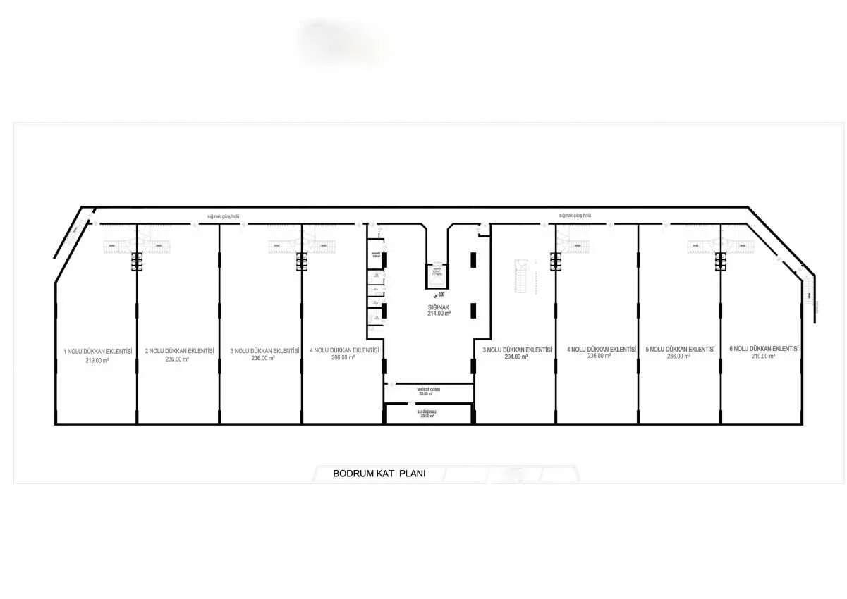
Наш проект состоит из двух блоков с общим количеством помещений - 34, площадь земельного участка составляет 5 330 кв.м., закрытая площадь занимает территорию 10 000 кв.м. и 3 200 кв.м. терраса. В проекте помещения от 64 кв.м. до 295 кв.м. Есть как возможность аренды, так и покупки помещения.

ДЕЙСТВУЮТ СПЕЦИАЛЬНЫЕ ПРЕДЛОЖЕНИЯ И СКИДКИ!

Распечатать